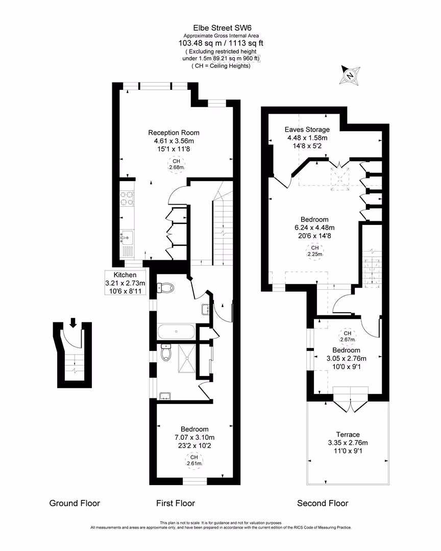
This beautifully presented and generously proportioned three-bedroom period conversion flat has been completely rebuilt and renovated to an exceptional standard throughout. Spanning approximately 1,114 sq ft over two floors, the property offers stylish and contemporary living while retaining a classic feel.
A particular highlight is the expansive, southwest-facing roof terrace, perfect for outdoor entertaining or relaxing with far-reaching views over Sands End. Every room benefits from integrated air conditioning, and the property features premium fixtures and fittings throughout.
Occupying a quiet, sought-after residential street in the Sands End area of Fulham, the flat is ideally located near Imperial Wharf and within easy reach of Fulham Broadway, Parsons Green, and Wandsworth Old Town. Excellent transport links—including Overground, Underground, regular bus services, and the Thames Clipper—offer seamless access to Central London and the City.
