Beautifully Maintained Five/ Four Bedroom Semi-Detached Home in the Heart of Parsons Green
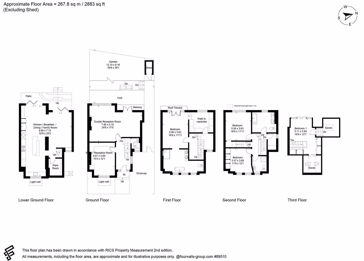
Nestled on the sought-after Fulham Park Road, this elegant five/ four double bedroom semi-detached house offers generous living space, timeless charm, and modern convenience — all within moments of Parsons Green and the vibrant Fulham lifestyle.
Beautifully maintained throughout, the property boasts a spacious and light-filled layout, ideal for families or those looking to upsize. The heart of the home features a large open-plan kitchen and dining area, perfect for entertaining, with seamless access to a private garden. Multiple reception areas offer flexibility for both formal and casual living.
Upstairs, four well-proportioned double bedrooms provide ample accommodation, complemented by stylish bathrooms and plenty of built-in storage including a walk in wardrobe which can be easily configured as a fifth bedroom.
Further benefits include off-street car parking, a rare find in this area, and elegant period features blended with contemporary finishes.
